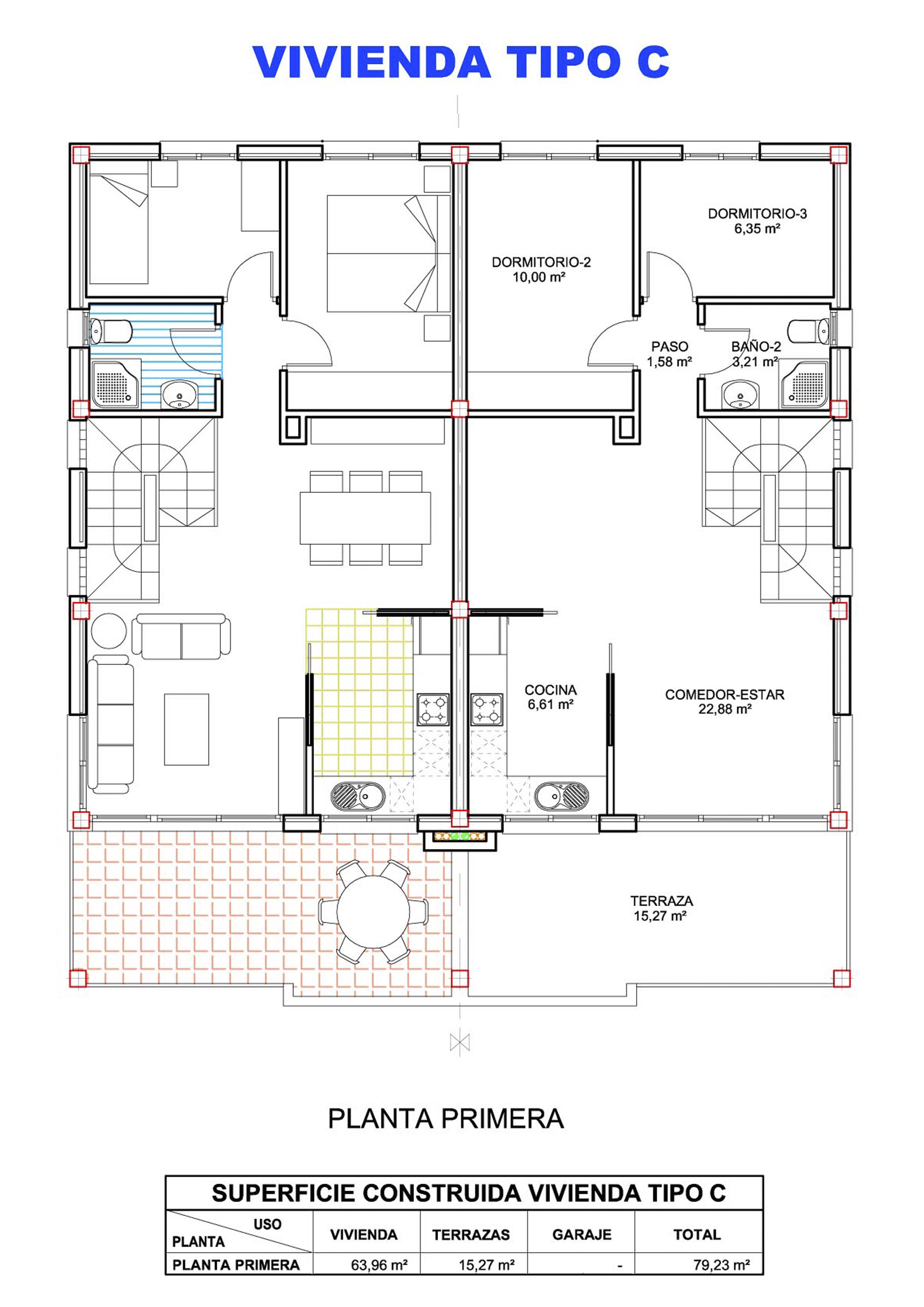
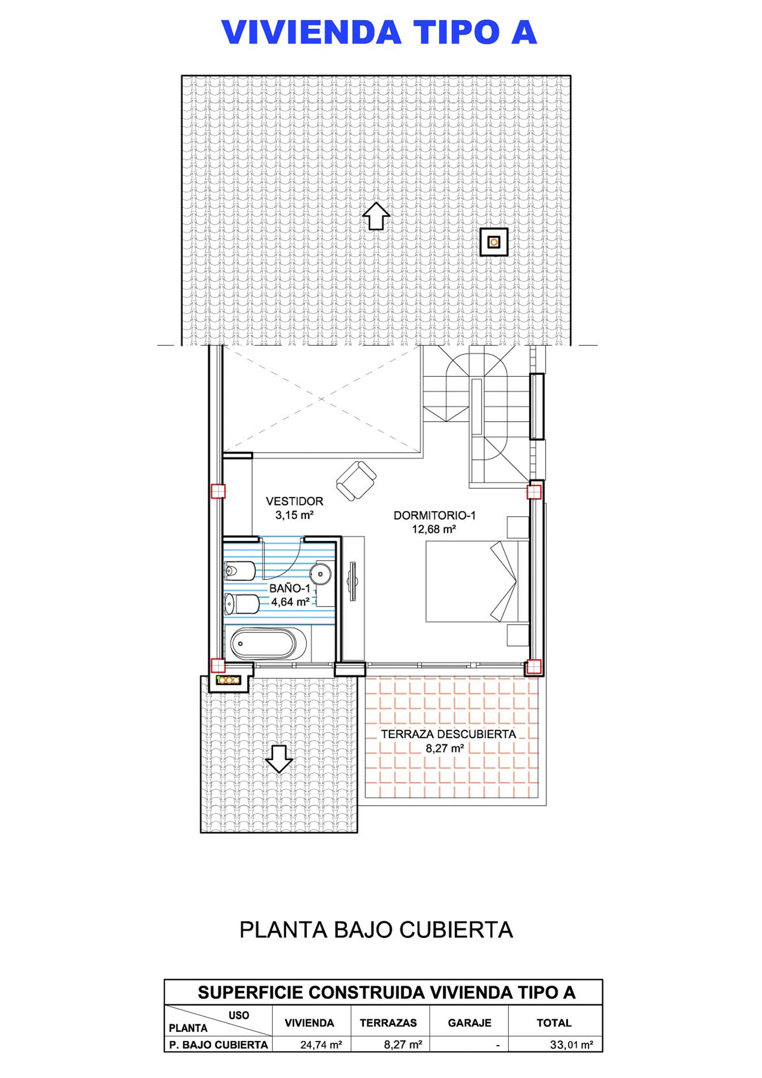
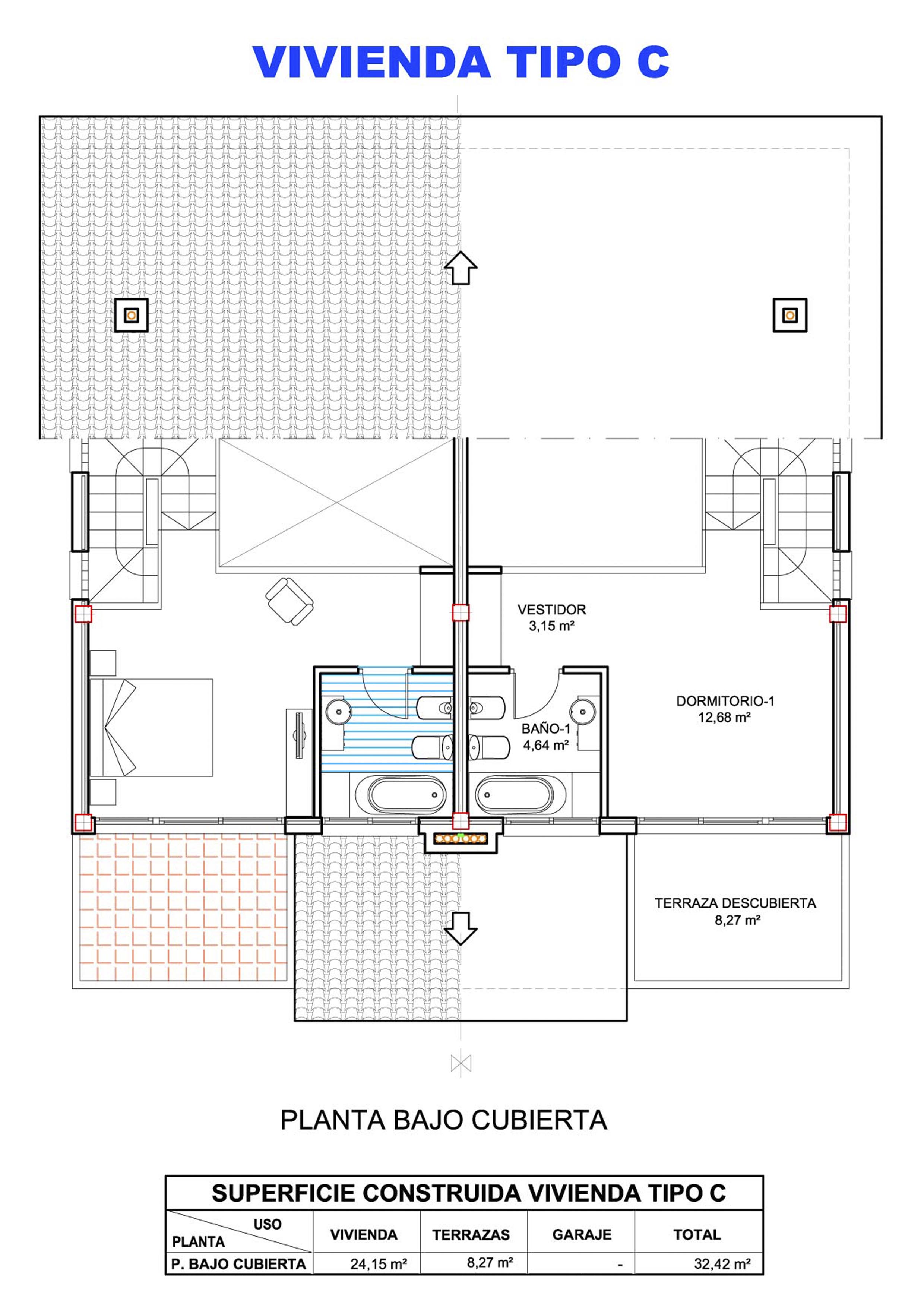
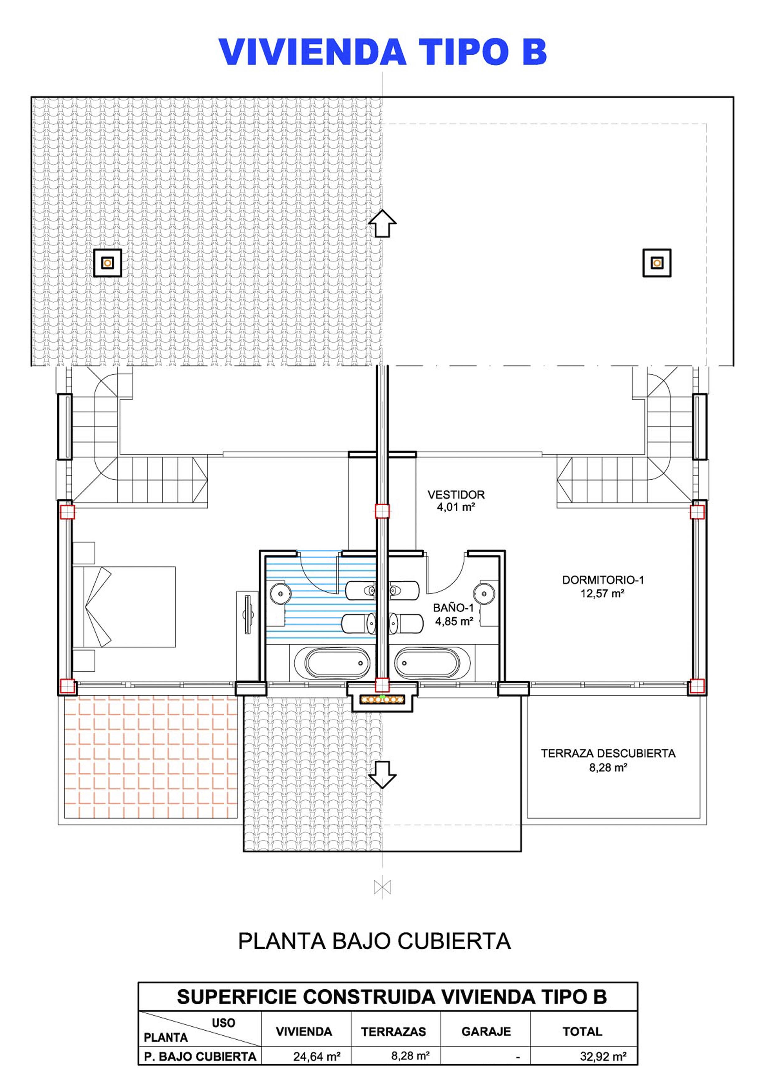
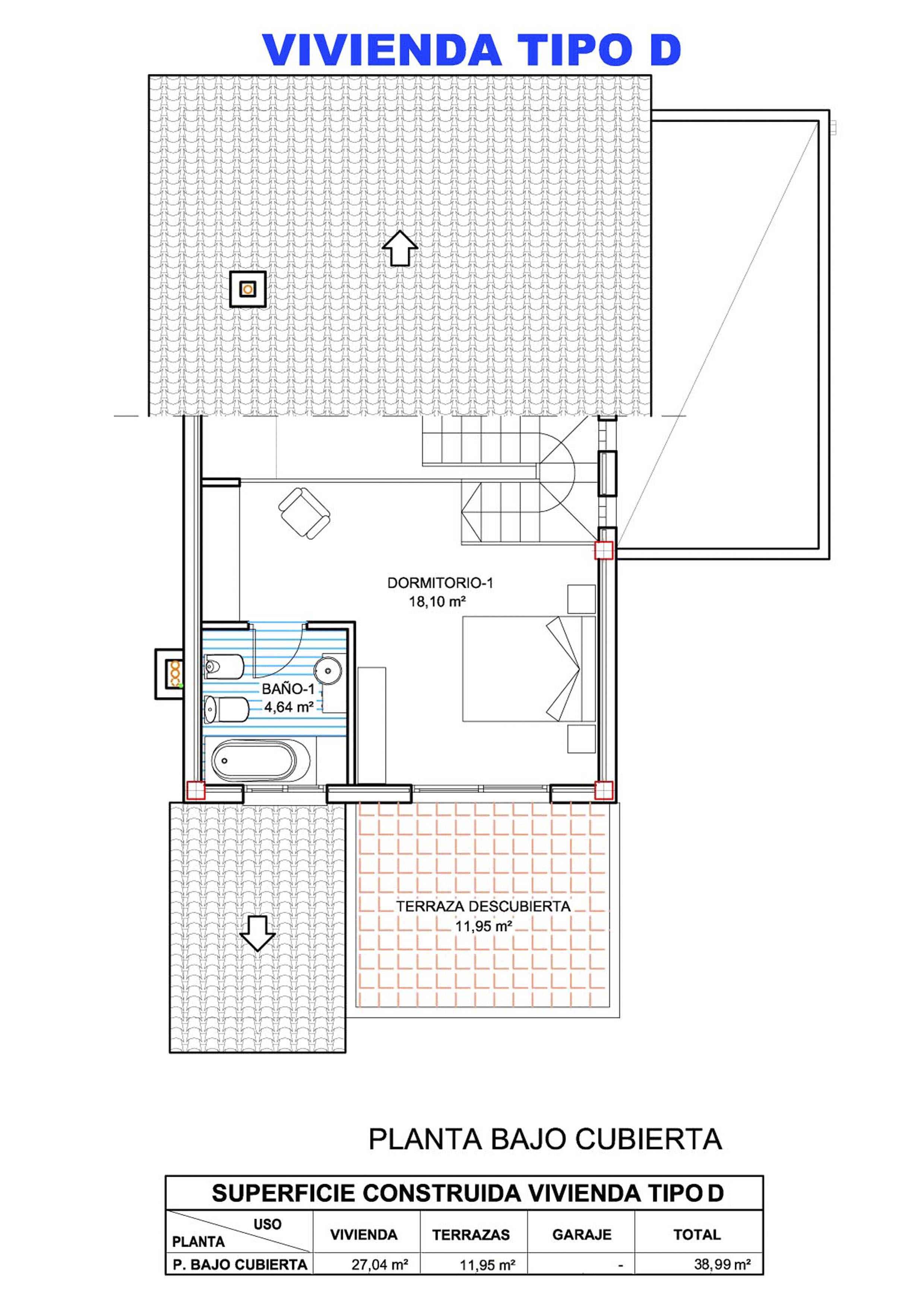
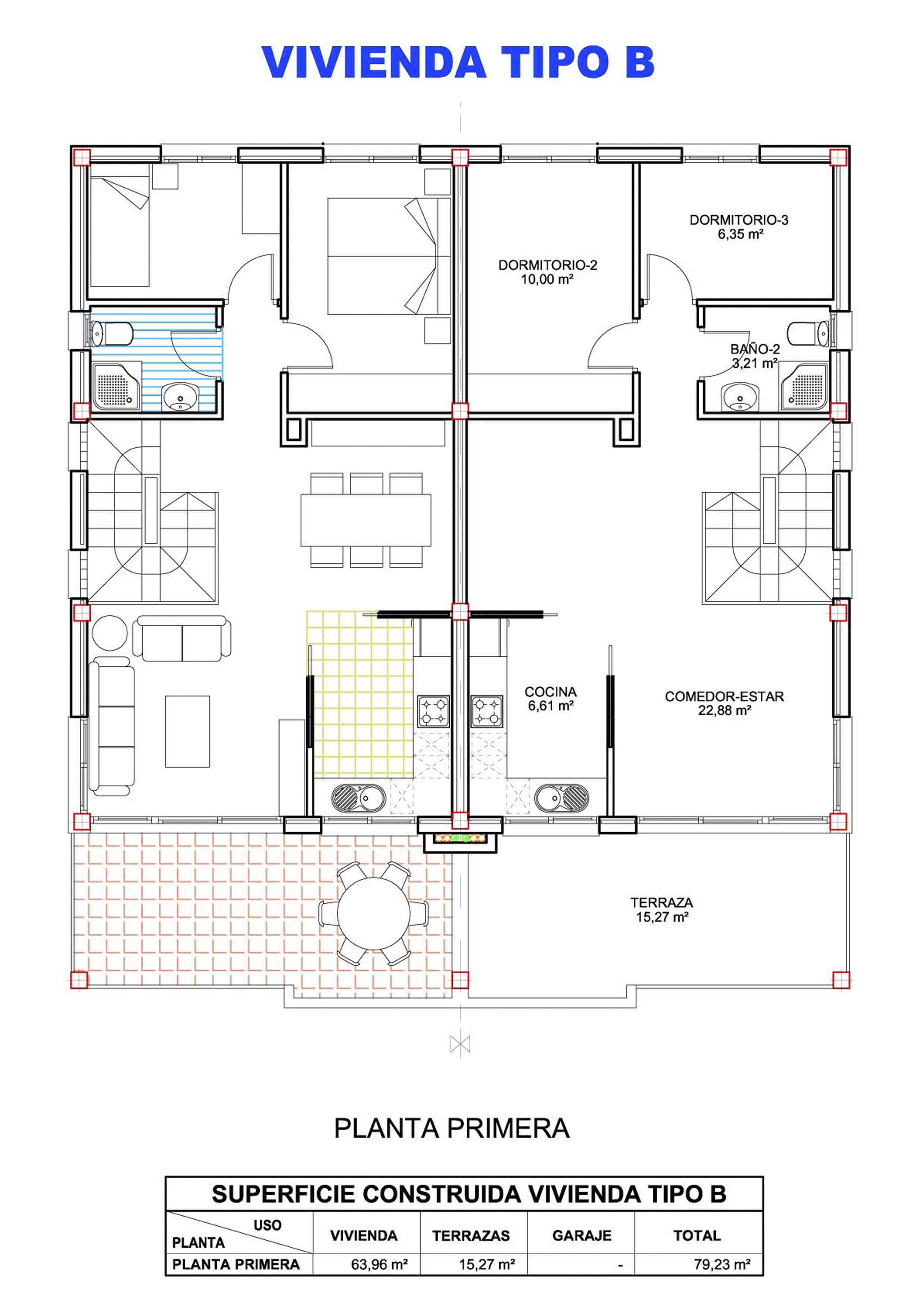
3 Habitaciones 2 Baños 180.00 m

Descripción

 Obra Nueva. Próxima construcción de chalets independientes y pareados (a partir de 180m2), con 3 habitaciones, 2 baños, cocina independiente, salón comedor, gran garaje, jardín privado (parcela a partir de 200 m2) , piscina comunitaria, excelentes acabados, en zona residencial y tranquila, a partir de 235.000 €.

kit-text-stroke-width: 0px; ">MEMORIA DE CALIDADES RESIDENCIAL LA VELA
ESTRUCTURA:
La estructura estará formada por un sistema estructural de pilares y jácenas de hormigón armado. Los forjados serán de semiviguetas pretensadas de hormigón armado, con bovedillas cerámicas y/o de hormigón, capa de compresión y malla metálica.
TABIQUERIA:
En muros de separación entre elementos comunes serán de ladrillo
perforado de 12 cm. De espesor, y/o entre diferentes propietarios serán de dos hojas de ladrillo hueco. Entre elementos interiores su espesor será de 4, 7 o 9 cm., según el caso.
SOLERA:
De hormigón en masa de 15 cm. De espesor.
FACHADA:
De ladrillo cerámico con cámara de aire y tabique interior.
CUBIERTA:
Inclinada de teja cerámica. Planta transpirable.
CARPINTERIA:
Las puertas y armarios interiores serán prefabricados, con
premarco y marco de madera de pino, paramentos y tapajuntas lisos, acabados con chapas de madera noble.
CARPINTERIA EXTERIOR:
De aluminio anodizado lacado con hojas practicables y/o correderas.
PERSIANAS:
Enrollables de aluminio.
VIDRIERA:
Vidrio con cámara de aire tipo Climalit 4-8-4, para la carpintería
exterior.
PROTECCIONES:
Barandilla de hierro.
ENYESADOS:
Paramentos verticales y horizontales del interior de las dependencias de las viviendas, de la escalera y de los locales.
ALICATADOS CERAMICOS:
En los paramentos verticales de los locales húmedos (cocina y
baños).
REVESTIMIENTOS EXTERIORES:
Con mortero impermeable tipo “monocapa”, sobre elementos
exteriores que no tengan acabados vistos.
FALSOS TECHOS:
De escayola en locales húmedos, pasillos y vestíbulo de entrada.
APLACADOS:
Revestimiento de piedra natural a la fachada. De piedra granítica
en las encimeras de los muebles de cocina. Zócalo cerámico en los
paramentos enyesados.
PINTURA:
Capa de imprimación y barnizado mate sobre elementos de
madera. Pintura plástica lisa sobre elementos enyesados. Pintura
metálica sobre elementos metálicos.
CORONAMIENTOS, DINTELES Y VIERTE AGUAS:
De piezas cerámicas y/o de hormigón prefabricado.
PAVIMENTOS Y ZOCALOS:
Cerámica tipo “gres” en las viviendas y terrazas exteriores.
Escaleras de granito y/o mármol nacional.
IMPERMEABILIZACION:
Espuma de poliuretano proyectado en cámaras de aire.
Poliestireno extruido en cubierta. Con elementos cilíndricos de lana de vidrio en las tuberías de agua caliente.
RECOGIDA Y EVACUACION DE RESIDUOS:
Previsión de un espacio de 150 dm3 para fraccionamiento de
residuos en cada vivienda.
CALIDAD DEL AIRE INTERIOR:
Conductos para la extracción de gases y humos con elementos
cerámicos prefabricados y/o con tubos de PVC. Chimeneas de ventilación exterior.
SUMINISTRO DE AGUA:
Red de conductos de agua con tubos de cobre o PVC, empotrados.
Agua caliente: Sistema de producción ACS con energía solar
térmica con una contribución mínima de 60% del consumo previsto.
De porcelana vitrificada blanca y/o de color suave, con grifería
tipo “monomando”.
EVACUACION DE AGUAS:
Red de saneamiento separada para aguas residuales y pluviales,
con tubos de PVC sellados, hasta la arqueta de acometida.
ACCESOS:
Encintado de aceras y pavimentados.
AGUA:
Existente en conducción subterránea y contador en fachada.
ELECTRICIDAD:
Existente en conducción subterránea y contador en fachada.
EVACUACION DE AGUAS:
Existente para aguas residuales.
Las aguas pluviales discurren por superficie.
TELEFONIA:
Existente, en tendido aéreo.
RECOGIDA DE BASURAS:
Mediante contenedores superficiales de calle.
SERVICIO POSTAL:
Buzones centralizados junto a puerta de acceso al recinto.
NOTA: La empresa se reserva el derecho de modificar la memoria de calidades, siempre que los materiales elegidos sean igual o de superior calidad que los reemplazados. Este documento carece de valorcontractual. Sólo es válido a efectos informativos.

 FORMA DE PAGO
- A la firma del contrato un 10 % del valor de
la vivienda.
- Por certificaciones se pagara un 30 % hasta
la finalización de la vivienda, en varios pagos según progreso de la obra.
- El 60 % restante se entregara en el momento de la firma de la escritura pública de compra-venta.

 

 

Características

  • Piscina comunitaria
  • Electrodomesticos
  • Jardín privado
  • Jardín comunitario
  • Cocina independiente
  • Terraza
  • Armarios empotrados
  • Aire acondicionado split
  • Todo exterior
  • Garaje
  • Trastero

Complete el formulario y le responderemos con la mayor brevedad posible. Todos los campos son obligatorios.


© 2026 | Todomaestrat | Todos los Derechos Reservados